Riverside Living

Mit Riverside Living entsteht in Koblenz-Pfaffendorf ein besonderes Neubauprojekt: Eine Lückenbebauung im historischen Ortskern schafft vier hochwertige Eigentumswohnungen mit Blick auf den Rhein – eingebettet in eine der schönsten Wohnlagen der Region.

Das Vorderhaus mit Klinkerfassade und das Hinterhaus in Edelputz fügen sich sensibel in die bestehende Stadtstruktur ein. Zeitgemäße Architektur, moderne Ausstattung und ein durchdachtes Energiekonzept machen Riverside Living zu einem Zuhause mit besonderem Anspruch – für alle, die Rheinblick und Lebensqualität zu schätzen wissen.

Eigentumswohnungen Koblenz Pfaffendorf Rheinblick
Koblenz Pfaffendorf

Projektdetails

Adresse
EMSER STRAßE 137
56076 KOBLENZ-PFAFFENDORF
Architekt
ARCHITEKTUHRWERK, ANNE-KATRIN ERSTLING
Fertigstellung
Q2/2027
Architektur
ZEITGEMÄSSE EINFÜGUNG EINES BAUKÖRPERS IN DIE BESTEHENDE STADTSTRUKTUR
Einheiten
4 EINHEITEN
Wohnflächen
CA. 52–134 m²
Ausstattung
WÄRMEPUMPE, AUFZUG, FUßBODENHEIZUNG, KNX-GRUNDINSTALLATION, BEMUSTERUNGSKATALOG
Besonderheiten
RHEINBLICK, HOCHWERTIGE BAUWEISE, MODERNE GRUNDRISSE, KAUFPREISE AB 312.000 €
MAKLERPROVISION
3,57% INKLUSIVE MEHRWERTSTEUER

Lage Pfaffendorf

Koblenz-Pfaffendorf liegt rechtsrheinisch, direkt gegenüber der Koblenzer Altstadt – sonnig, ruhig und privilegiert. Der Stadtteil trägt nicht umsonst den Beinamen „Rheinisches Nizza": Die geschützte Südlage, der freie Blick auf den Rhein und die Weinberge sowie das milde Klima machen Pfaffendorf zu einer der begehrtesten Wohnlagen am Mittelrhein.

Riverside Living befindet sich mittendrin – in einer Lage, die urbane Erreichbarkeit mit echter Naturverbundenheit verbindet. Die Innenstadt von Koblenz ist in wenigen Minuten erreichbar, Rhein und Natur liegen direkt vor der Tür.

FAQs

  • 1. Wo befindet sich das Projekt Riverside Living?
    Riverside Living entsteht in Koblenz-Pfaffendorf – rechtsrheinisch, direkt gegenüber der Koblenzer Altstadt. Der Stadtteil wird auch als „Rheinisches Nizza" bezeichnet und besticht durch seine sonnige Südlage, den freien Rheinblick und das milde Klima.
  • 2. Wie groß sind die Wohnungen?
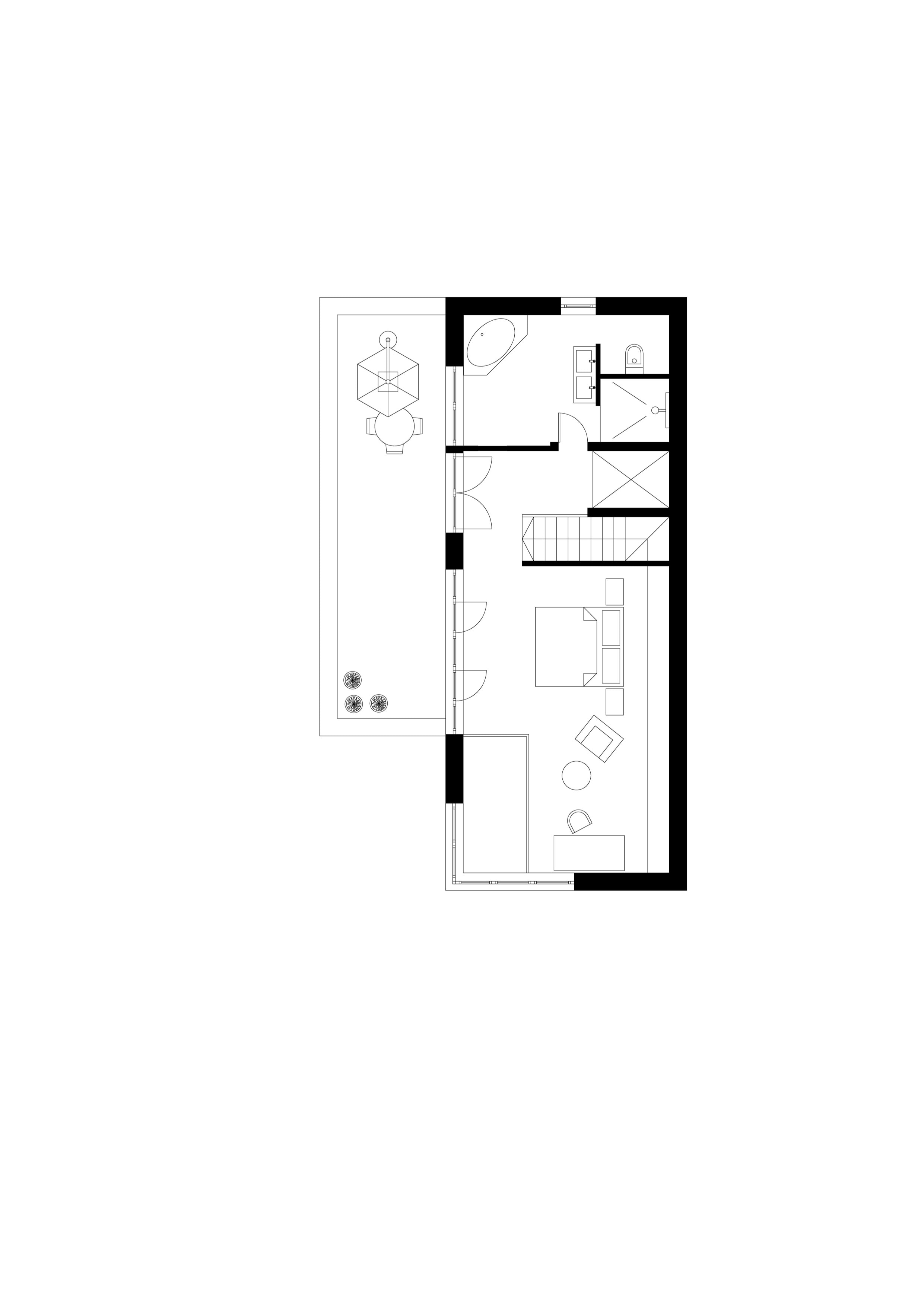
    Es entstehen insgesamt vier Eigentumswohnungen mit Flächen zwischen ca. 52 und 134 m²: WE 01 (ca. 52 m², 1. OG Vorderhaus), WE 02 (ca. 67 m², Maisonette 2.+3. OG Vorderhaus), WE 03 (ca. 74 m², 2. OG Vorderhaus) und WE 04 (ca. 134 m², Maisonette 3.+4. OG Hinterhaus).
  • 3. Welche Ausstattung bieten die Wohnungen?
    Die Ausstattung erfüllt höchste Ansprüche: Wärmepumpe, Fußbodenheizung, Aufzug, KNX-Grundinstallation und ein individueller Bemusterungskatalog sind Standard. Hochwertige Materialien und eine klare, zeitgemäße Formensprache prägen jede Einheit.
  • 4. Wann ist die Fertigstellung geplant?
    Die Fertigstellung des Neubaus ist für Q2/2027 vorgesehen.
  • 5. Wie kann ich eine Wohnung in Riverside Living erwerben?
    Der Verkauf erfolgt über LBS Immobilien GmbH Südwest, Büro Koblenz – persönlicher Ansprechpartner: Herr Carsten Unger. Interessierte Käufer können sich direkt unter carsten.unger@lbs-sw.de oder telefonisch unter +49 (0)261 133 67 50 beraten lassen.